
2025 IIDA Celebrate In Design Awards:
First Place in Private Home Category
About the Award
The International Interior Design Association (IIDA) is the Commercial Interior Design Association. They support design professionals, industry affiliates, educators, students, firms and their clients through our global network of members across 58 countries. They advocate for advancements in education, design excellence, legislation, leadership, accreditation, and community outreach to increase the value and understanding of Interior Design as a profession that enhances business value and positively impacts the health and well-being of people’s lives every day.
The Celebrate in Design awards is an IIDA WI annual awards event to honor innovative solutions and the outstanding design of IIDA WI members and firms. See the list of winners here.
Judging Criteria
- Address design challenges and respond to client needs
- Demonstrate successful incorporation of materials and interior finishes
- Appropriate use of design elements including architectural details, lighting, and furnishings to strengthen overall design and support the design concept
- Innovation and originality in design
- Clear design concept
Project Submission
Our design inspiration for this lakefront condominium was guided by our clients’ desire for a fresh and open escape inspired by the site’s stunning lakefront surroundings. Our holistic design approach followed key goals of seamlessly blending the indoors with the out, emphasizing simplicity, and creating inviting spaces for relaxation, reflection and entertaining.
The primary challenge of this project was the outdated structural interior and compartmentalized floor plan, which demanded a complete overhaul — not only for a more thoughtful, appealing aesthetic — but also for modern efficiencies. Our down-to-the-studs renovation began with the heart of the home, fully opening up the first floor living space to enhance its connection with the outdoors, day-to-day livability and entertaining capabilities.

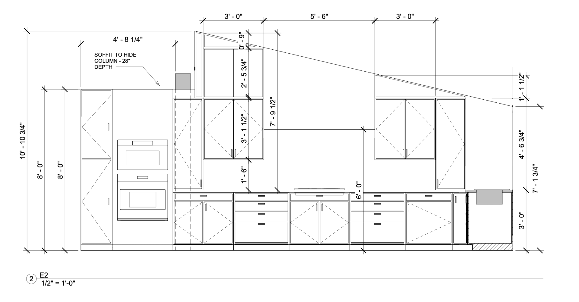
The first impactful update was the expansion of the original cramped entryway with installation of a floating walnut staircase for better visibility through the first floor. We then moved the entire kitchen lakeside. Its new location not only delivered a flawless connection to the water, but also gave us the opportunity to elevate the kitchen’s functionality, simplicity and epicurean luxury. We then doubled its size by converting the old kitchen into a large walk-in pantry with a gorgeous teal backsplash and custom storage solutions. A multifunctional island and chef-quality appliances were installed that function for intimate daily life or expansive entertaining. Quarter-sawn walnut cabinets with C-channels yield a simple, unobstructed wall of cabinetry, while the stone-hued plaster hood serves as a live finish that blends a soft organic feel with the rigid lines of the island’s waterfall quartz. The removal of existing walls also served to provide a more modern, airy entertainment space, seamlessly integrating the kitchen, dining, and fireplace sitting area.
Click through to see a brief overview of this kitchen’s design progression
In the sunroom, we painted the walls a serene aegean and installed additional windows for more southwest sun. An impressive floor-to-ceiling, wall-to-wall Centor door provides a nearly imperceptible transition between indoors and outdoors, and a breathtaking abundance of natural light. A meditation room was created next to the living area — a perfect solution to invite restful, inner connection. To define this space, we added walls and flooring, along with a floor-to-ceiling custom art door to delineate the entrance.
Our final upgrades came from redesigning the existing three bathroom spaces to better reflect our focus on simpler form and function. For the primary bath, we removed an outdated vanity and walk-in closet, creating a luxurious, spa-like environment with a private toilet room, double vanity, and wet room replete with an opulent, freestanding soaking tub. We selected calming, sky blue cement tiles for the decorative arch, creating an intentional space for unwinding. To allow for the more spacious bathroom, we opted for more efficient storage solutions of well-appointed cabinetry in the adjacent bedroom.



The guest bath was our small-but-mighty enclave, in need of a larger feel and more storage. The tub-shower combination was removed in favor of a shower with a full-glass enclosure. Floor-to-ceiling tilework featuring stunning peacock green KitKat lower tiles and vertical artisan white subway upper tiles draw the eye up and down. A floating vanity in a coordinating color gives breathing room, and a medicine cabinet with integrated lights provides utility for guests.
Lastly, in the powder bath, we created a rich, vibrant space inspired by evening waters glittering at sunset. We hung deep cerulean blue silk wallpaper on the walls and ceiling for incredible depth. A new soapstone vanity countertop and backsplash with hints of gold pair perfectly with updated Brizo plumbing fixtures and accessories, making for a dramatic statement to befitting the nearby lakeside surround.
Project Credits:
Contractor: Sweeney Design Remodel
Cabinetry: Kitchen Ideas Center
Flooring/Tile: Flooring Designs
Doors/Trim/Casing: Brunsell Lumber & Millwork and TruStile Doors, LLC
Countertops: Granite Shop of Madison
Windows: Window Design Center
Showers/Glass: Brunke Glass & Window Co
Fireplace: Top Hat
Custom Sliding Door Art: Jill Stevens Art



